Web Analytics Made Easy - Statcounter
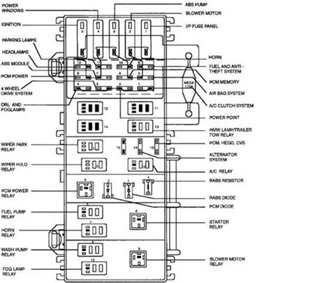
2001 Toyota Tundra Fuse Box Diagram: The Reliable Fix!

2001 Toyota Tundra Fuse Box Diagram: The Reliable Fix!

2001 Toyota Tundra Fuse Box Diagram: The Reliable Fix! Toyota tundra 2018 fuse box diagram